Arkitektur er kunstens ophav siges det, og det er netop med baggrund i en kunstnerisk livsopfattelse, at arkitekten bør formgive vore livsrum.
At arbejde med formgivning af boliger, arbejdspladser og bymiljøer kræver en stor indsats fra alle implicerede parter. Det grundlæggende i ethvert byggeprojekt er dog idéen og behovsanalysen. Det optimale resultat opnås bedst, når et maximum af behov og idéer til slut bliver synlige og brugbare i det færdige byggeri.
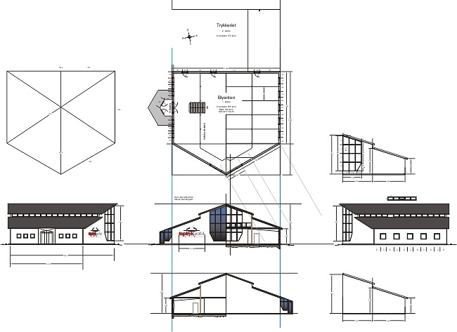
Til ethvert vellykket byggeri hører naturligvis gode gennemtænkte tegninger. Her ses nogle af tegningerne til en servicevirksomhed.


Motivationen for byggeriet var som følger:
Byggeriet er vendt mod vestnordvest af flere grunde.
1. Facade mod vejen hvor den største færdsel er.
2. Lysindfald fra nord og vest.
3. Rumfornemmelse der virker samlende p.g.a. skrå vægge.
4. Med et centrum i bygningen vil både det indvendige og det udvendige virke symmetrisk og harmonisk til modsætning af én stigende tagflade mod nord.
5. Det øverste dæk vil efter alt at dømme give en spændende rumoplevelse og være ideelt til arrangementer med den store væg mod øst.
6. Trappen går op på den "lange" side og virker pladsbesparende og direkte. 6a. Receptionen kan placeres meget flot i det nordvestlige hjørne med masser af lys og rum.
7. Match med de nuværende bygninger p.g.a. tagrygning, hældning og farve.
8. Mulighed for at udvide mellem nyt og gammelt uden at gribe ind i det nyes tagkonstruktion.
9. Små/mindre vinduer mod syd og nord og højt til loftet med ovenlysrække vil give et "stort" lys i tegnelokalerne uden direkte sol.
10. Parkerede biler "dækker" ikke over facaden og holder kørselsarealet og dermed anlægsudgifterne nede.
11. De to logoer på facaden vil kunne læses næsten hele vejen rundt i svinget.
12. Tydeligt indgangsparti mod nord som også virker som vindfang og holder kulden ude og varmen inde.
13. Byggeriet vil matche nabobygningerne.

Skulle også De have et ønske om et innovativt nybyggeri, er Form & Grafik måske den rigtige partner.
